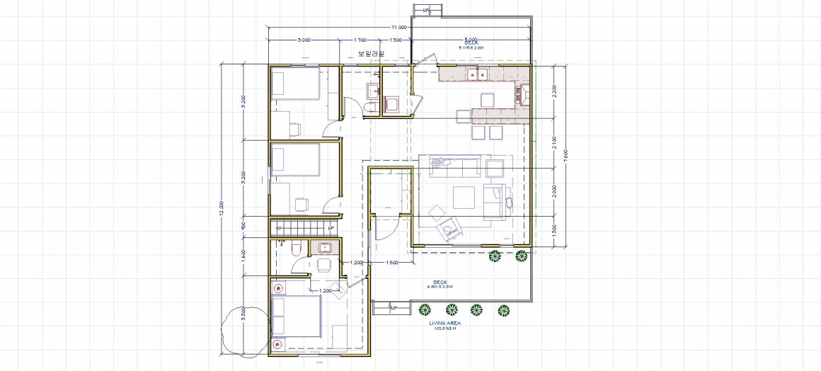
| 2019년 04월 영동군 노천리 35평 최종도면입니다. | |||
|---|---|---|---|
| 등 록 일 | 2019.03.28 11:09:22 | 조회 | 504 |
| 등 록 자 | 한양하우징 | ||
|
안녕하세요 한양하우징 대표 임현돈입니다. 한달여간에 걸쳐 수정 보완 작업을 진행하였습니다. 현장 준비도 완료 되었고 4월 8일 기초공사 일정도 잡았습니다. 이후 공사 진행 사진을 올리면서 설명 드리겠습니다.
|
|||
| 2019년 04월 영동군 노천리 35평 최종도면입니다. | |||
|---|---|---|---|
| 등 록 일 | 2019.03.28 11:09:22 | 조회 | 504 |
| 등 록 자 | 한양하우징 | ||
|
안녕하세요 한양하우징 대표 임현돈입니다. 한달여간에 걸쳐 수정 보완 작업을 진행하였습니다. 현장 준비도 완료 되었고 4월 8일 기초공사 일정도 잡았습니다. 이후 공사 진행 사진을 올리면서 설명 드리겠습니다.
|
|||