| 2019년 04월영동군 매곡면 노천리 35평 신축예정입니다. | |||
|---|---|---|---|
| 등 록 일 | 2019.03.08 21:01:25 | 조회 | 509 |
| 등 록 자 | 한양하우징 | ||
|
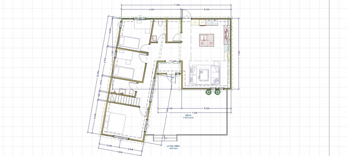
안녕하세요 한양하우징입니다. 기존의 주택 철거와 토지정리 관계로 4월 초에 착공예정입니다. 계획도면 작업은 완료하였으며, 자세한 공사내용은 추후에 상세히 올리도록 하겠습니다. 수고하셨습니다.
|
|||
| 2019년 04월영동군 매곡면 노천리 35평 신축예정입니다. | |||
|---|---|---|---|
| 등 록 일 | 2019.03.08 21:01:25 | 조회 | 509 |
| 등 록 자 | 한양하우징 | ||
|
안녕하세요 한양하우징입니다. 기존의 주택 철거와 토지정리 관계로 4월 초에 착공예정입니다. 계획도면 작업은 완료하였으며, 자세한 공사내용은 추후에 상세히 올리도록 하겠습니다. 수고하셨습니다.
|
|||