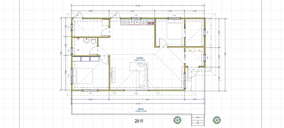
| 2018년 05월 군위군 고로면 가암리 28평 건축예정입니다. | |||
|---|---|---|---|
| 등 록 일 | 2018.04.21 13:06:40 | 조회 | 664 |
| 등 록 자 | 한양하우징 | ||
|
안녕하세요 한양하우징입니다. 계획도면 작업을 마치고 토목설계 같이 협의가 들어가는 관계로 5월중에 착공될 예정입니다. 착공 후 자세한 내용은 다시 정리해서 상세히 올리도록 하겠습니다. 아래 3가지안 중에서 맨아래 모델을 선택하셨습니다. 계획도면 완료하고 허가진행 중입니다. 수고하셨습니다.
|
|||









