| 2021년 03월 강원도 화천군 간동면 24평 신축예정입니다. | |||
|---|---|---|---|
| 등 록 일 | 2020.12.17 20:47:22 | 조회 | 846 |
| 등 록 자 | 한양하우징 | ||
|
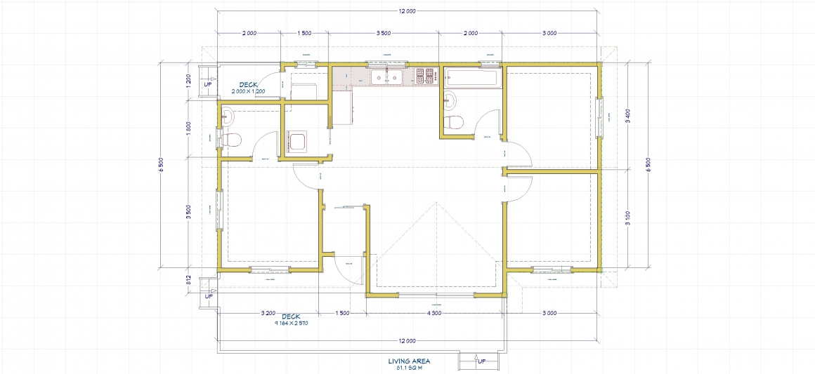
안녕하세요 한양하우징 임현돈입니다. 4년전 건축했던 건축주 가족분께서 신축을 의뢰하여 다시 착공할 예정입니다. 내년 3월중 화천군 간동면 24평 신축주택을 착공을 계획하고 있습니다. 다시 찾아주셔서 감사합니다.
|
|||
| 2021년 03월 강원도 화천군 간동면 24평 신축예정입니다. | |||
|---|---|---|---|
| 등 록 일 | 2020.12.17 20:47:22 | 조회 | 846 |
| 등 록 자 | 한양하우징 | ||
|
안녕하세요 한양하우징 임현돈입니다. 4년전 건축했던 건축주 가족분께서 신축을 의뢰하여 다시 착공할 예정입니다. 내년 3월중 화천군 간동면 24평 신축주택을 착공을 계획하고 있습니다. 다시 찾아주셔서 감사합니다.
|
|||