| 2021년 02월 경북 상주시 지천동 37평 신축예정입니다. | |||
|---|---|---|---|
| 등 록 일 | 2020.11.28 07:02:05 | 조회 | 740 |
| 등 록 자 | 한양하우징 | ||
|
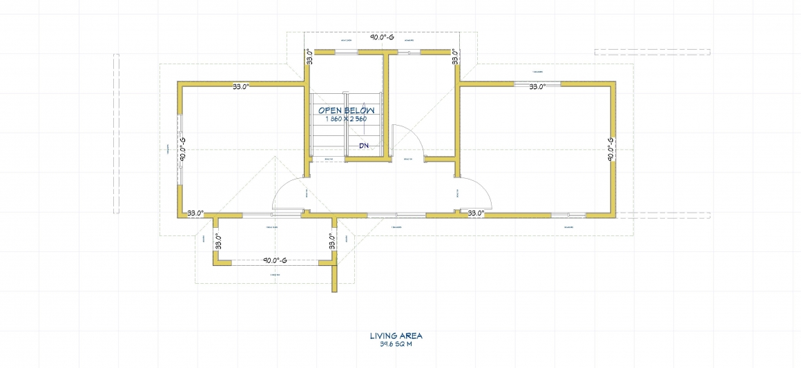
안녕하세요 한양하우징 임현돈입니다. 아직도 전 국민과 국가가 모두 힘들어하는 시기인 것 같습니다. 모두 건강하시고 힘내시길 바랍니다. 내년 2월 중순이후 상주시 지천동 37평 신축주택을 착공을 계획하고 있습니다. 올해 안에 허가및 측량신청 진행할 예정입니다.
|
|||
| 2021년 02월 경북 상주시 지천동 37평 신축예정입니다. | |||
|---|---|---|---|
| 등 록 일 | 2020.11.28 07:02:05 | 조회 | 740 |
| 등 록 자 | 한양하우징 | ||
|
안녕하세요 한양하우징 임현돈입니다. 아직도 전 국민과 국가가 모두 힘들어하는 시기인 것 같습니다. 모두 건강하시고 힘내시길 바랍니다. 내년 2월 중순이후 상주시 지천동 37평 신축주택을 착공을 계획하고 있습니다. 올해 안에 허가및 측량신청 진행할 예정입니다.
|
|||