| 2016년 10월 경북 칠곡군 복성리 30평 목조신축공사 착공합니다. | |||
|---|---|---|---|
| 등 록 일 | 2016.10.16 08:23:01 | 조회 | 2454 |
| 등 록 자 | 한양하우징 | ||
|
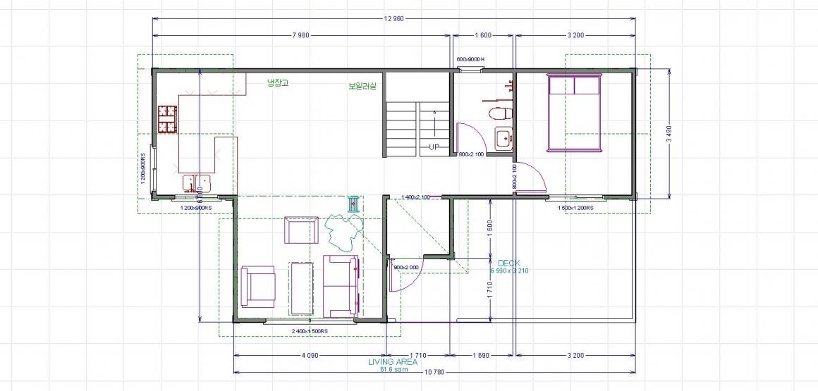
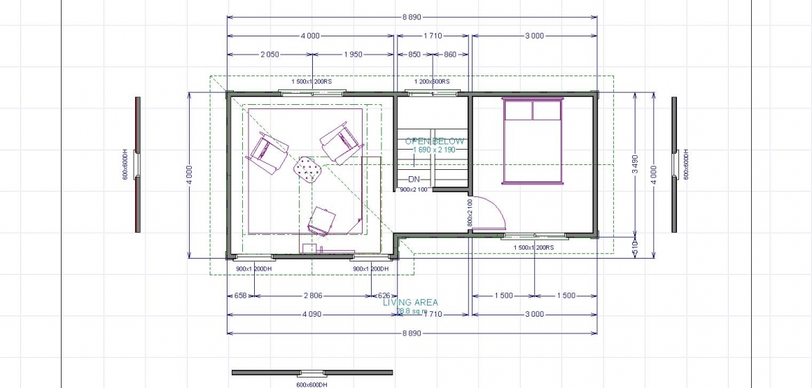
안녕하세요 한양하우징 임현돈입니다. 이제 2016년 가을이 성큼 다가왔습니다. 아침 저녁으론 시원함 보단 싸늘함이 느껴집니다. 저희 한양하우징도 현장이 3군데라 바쁜 나날을 보내고 있습니다. 이번에 착공 들어가는 현장은 약목면 복성리 30평 신축입니다. 외부마감은 제임스하디 제품 컬러플러스입니다 관심있게 봐주시고 시간이 되는대로 사진을 많이 올리겠습니다. 건강하세요.
|
|||









