| 2015년 8월 전북고창 23평 공사 착공합니다. | |||
|---|---|---|---|
| 등 록 일 | 2015.08.19 08:14:57 | 조회 | 1972 |
| 등 록 자 | 한양하우징 | ||
|
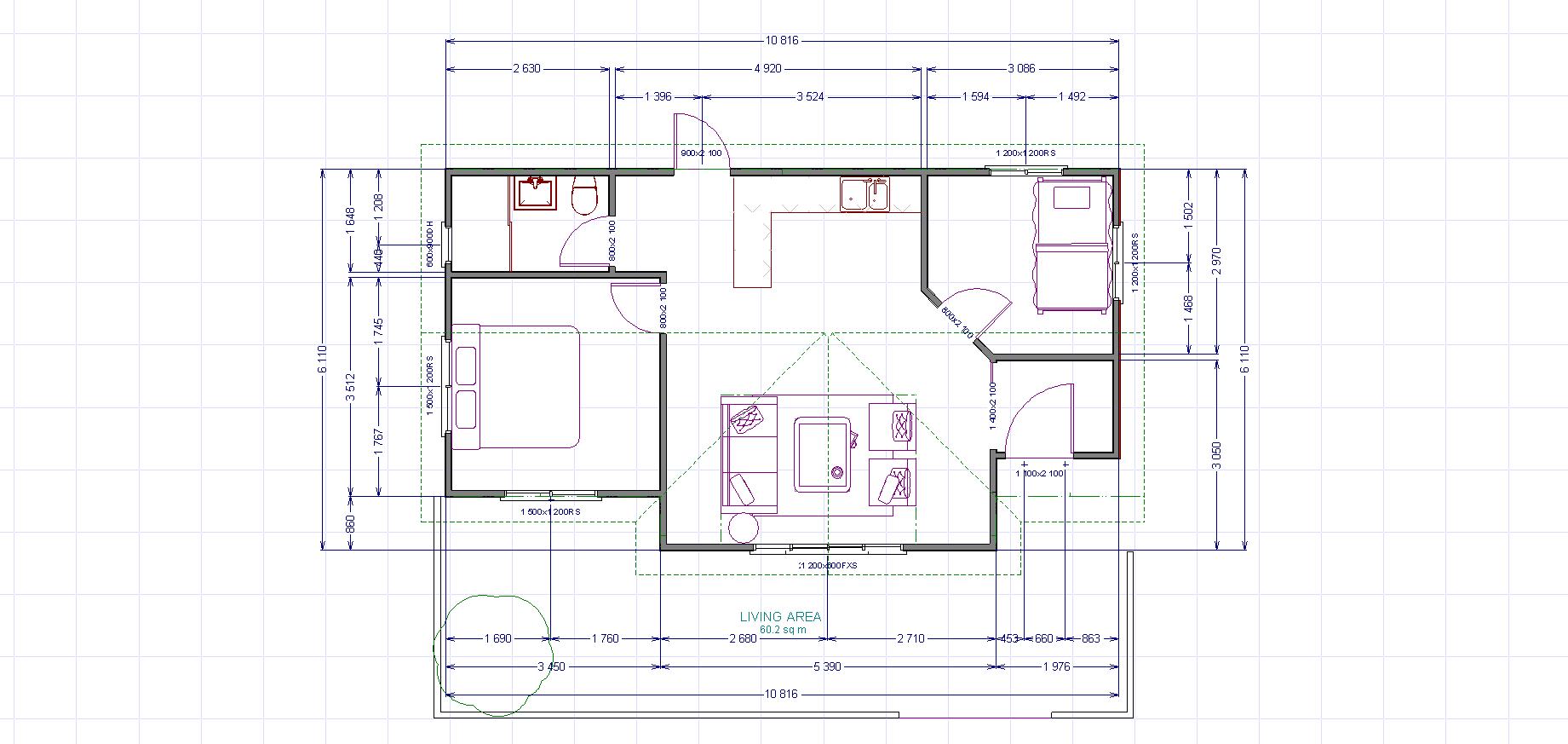
안녕하세요 한양하우징 임현돈입니다. 무더운 여름이 지나고 이제 제법 선선해졌습니다. 일하기 정말 좋은 계절이 돌아왔네요. 고향에 홀로 계신 어머님을 위해 지어질 23평 목조주택... 작은 공간이지만 정성을 다해 따뜻한 마음으로 지어드리겠습니다.
|
|||
| 2015년 8월 전북고창 23평 공사 착공합니다. | |||
|---|---|---|---|
| 등 록 일 | 2015.08.19 08:14:57 | 조회 | 1972 |
| 등 록 자 | 한양하우징 | ||
|
안녕하세요 한양하우징 임현돈입니다. 무더운 여름이 지나고 이제 제법 선선해졌습니다. 일하기 정말 좋은 계절이 돌아왔네요. 고향에 홀로 계신 어머님을 위해 지어질 23평 목조주택... 작은 공간이지만 정성을 다해 따뜻한 마음으로 지어드리겠습니다.
|
|||