| 2013년 2월중 충남 논산시 노성면 37평 목조주택 착공예정 | |||
|---|---|---|---|
| 등 록 일 | 2013.01.06 18:13:48 | 조회 | 3389 |
| 등 록 자 | 한양하우징 | ||
|
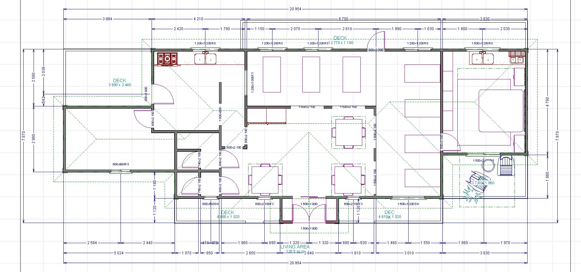
안녕하세요 한양하우징 임현돈입니다. 충남 논산시 노성면 37평 신축공사는 건축주 분들이 식당을 운영할 계획이라 허가사항을 체크할 필요가 있습니다. 이번주 마지막 계획도면 수정과 보완을 완료할 예정이고 다음주에 허가신청을 할 계획입니다. 신청 전까지 다시한번 더 도면 확인하시구요 주초에 뵙고 계획도면 완료하겠습니다.
|
|||







