| 2013년 2월중 경북 구미시 봉곡동 29평 목조주택 착공예정 | |||
|---|---|---|---|
| 등 록 일 | 2013.01.06 16:26:07 | 조회 | 3729 |
| 등 록 자 | 한양하우징 | ||
|
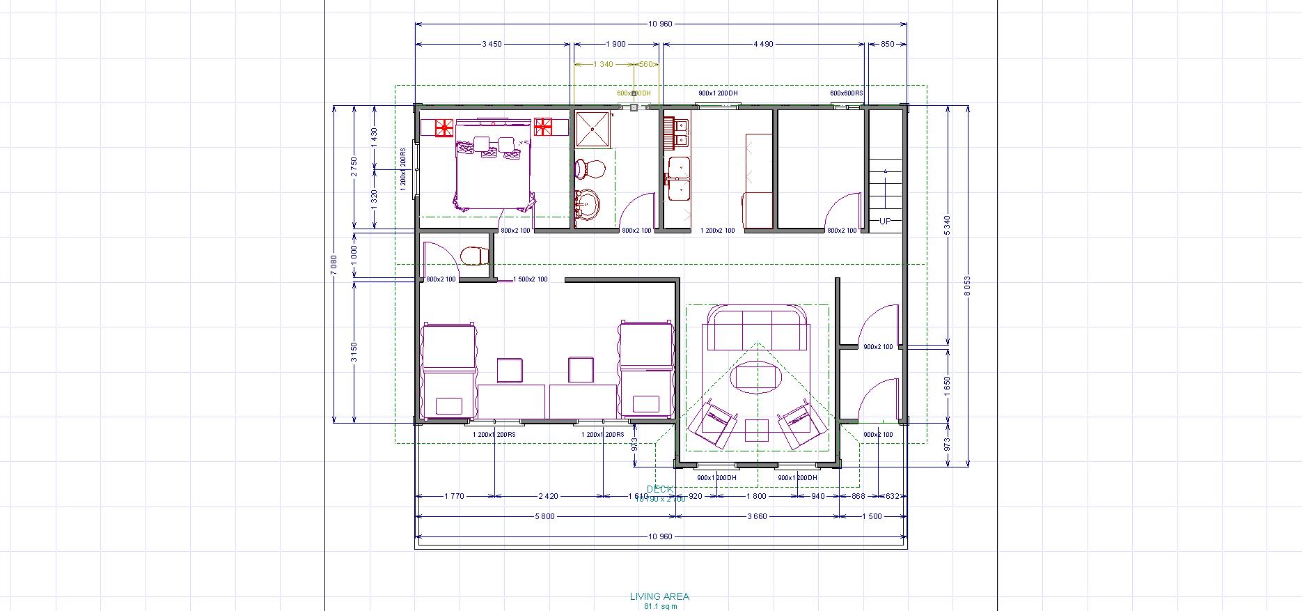
안녕하세요 한양하우징 임현돈입니다. 매서운 겨울 추위에 활동 범위는 줄어들고, 하루 하루 정리해야 할 일 들은 많은데 걱정입니다. 그런 가운데 경북 구미 봉곡동 29평 주택 계획안 수정과 보완을 반복하면서 1월중에 건축허가신청을 완료하고 2월중에 착공할 예정입니다.
성별 다른 애기들이 3명 있어서 2층 뒷쪽으로 뻐꾸기 창을 만들고 부엌 위쪽에 다락방을 만들예정입니다.
|
|||
- ▼ 다음글
- 청주시 흥덕구 최종마감사진입니다.







